Logo
Logo

Cleanbox

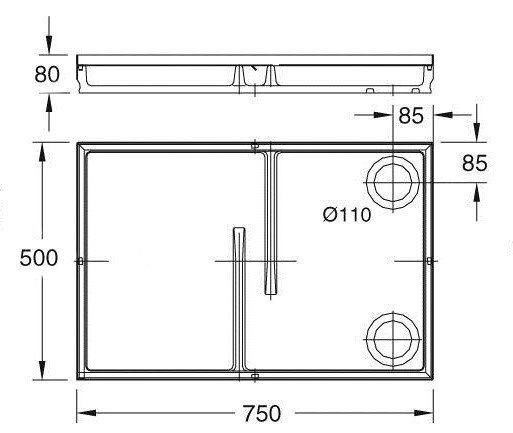
Polimerbeton doboz szennyfogók padlóburkolóba lerakásához.

Cleanbox kültéri használatra szolgál családi házak, panelházak, kis boltok, stb. elé. Ha a dobozok nagyobb felületekbe kerülnek összeállításra, használhatók nagy áruházak, iskolák, kórházak, hivatalok bejáratánál is. A Cleanbox polimerbetonból készül a teljes kerülete mentén integrált horganyzott éllel (L profil 25 × 20 × 2 mm) és középső alátámasztó bordákkal. A dobozba lerakható a Topwell 22 mm Standard (alusín, textil kivitel), a Topwell 22 mm Extra (az alusínt és kefét váltakozatató kivitel), a Topwell 22 mm Super (kefés kivitel), a acél tüzihorganyzású Kaparó rács (szemméret 30 × 10 mm) vagy az húzottacél rács. A Cleanbox vízelvezető vagy drénrendszerhez csatlakoztatása esetén a medrében átfúrható nyílások vannak kijelölve.

Lefolyókészlet megvásárlásának lehetősége.

Verzió

Műszaki adatok